Erweiterung Gesamtschule In der Höh, Volketswil
Wettbewerb 2000, 1. Rang
Bauherrschaft: Schulgemeinde Volketswil
Ausführung 1. Etappe 2001-2003, Ausführung 2. Etappe 2015-2017
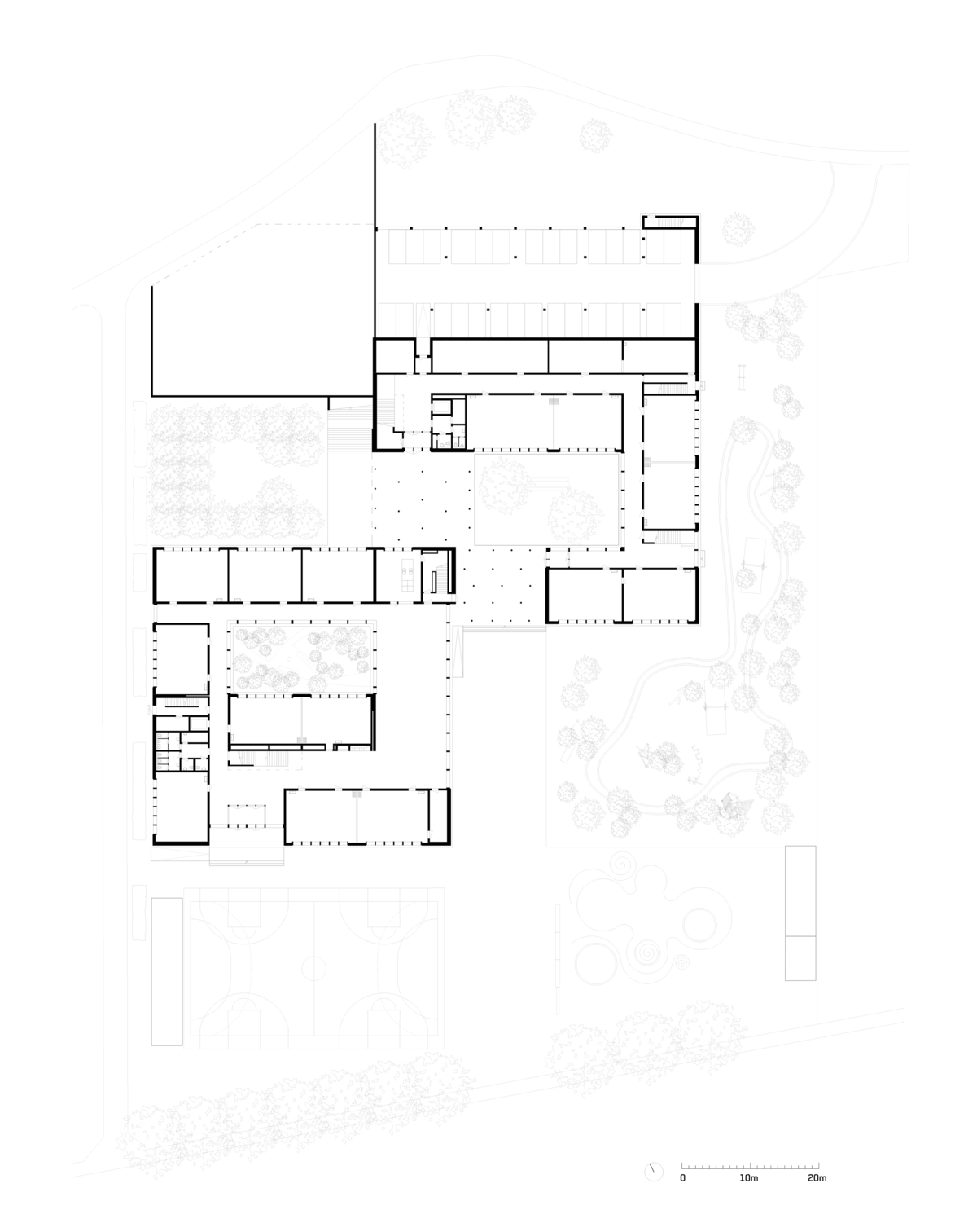
Gesamtschule In der Höh beschreibt ein kleines urbanes System, dass mit seiner Durchlässigkeit im Erdgeschoss über spannungsvolle Wegverbindungen die nutzungsspezifischen Aussenräume verbindet und dem Anspruch eines öffentlichen Hauses über das ganze Grundstück gerecht wird.
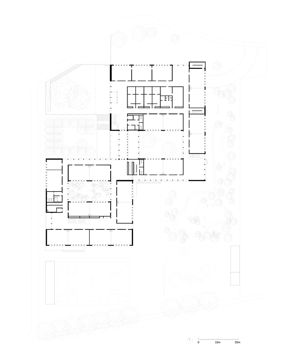
Erst im Obergeschoss verschmelzen die zwei Bauetappen an wenigen Punkten zu einem ganzen System von inneren Wegen und Plätzen, definiert über die Innenhöfe und die Setzung der Universalräume. Das mit Vertretern der Schule und Gemeinde entwickelte neue pädagogische Konzept findet seinen architektonischen Ausdruck in wandelbaren Unterrichtsräumen und dem offenen Kulturraum.
Eine komplexe, aber vielfältige und sinnliche Anlage soll mit sehr offenen, aber auch sehr privaten und intimen Bereichen das Leben der Schulgemeinschaft im ständigen Austausch fördern.
Planungsteam
Architektur: horisberger wagen architekten, Zürich
Bühler Christine (Projektleitung), Dettling Remo, Horisberger Detlef, Leemann Kenan, Rofe Christopher, Wagen Mario
Baumanagement: b+p baurealisation ag, Zürich
Landschaftsarchitektur: planikum gmbh, Zürich
Bauingenieur: EDY TOSCANO AG, Zürich
Bauphysik: BAKUS GmbH, Zürich
HLKS-Ingenieur: Schoch Reibenschuh AG, Volketswil
Elektroingenieur: Büchler & Partner AG, Zürich
Brandschutzplanung: AFC Air Flow Consulting AG, Zürich
Fotos: Beat Bühler, Zürich















