Landenberghaus, Greifensee
Projektwettbewerb im offenen Verfahren 2013, 1. Preis
Bauherrschaft: Gemeinde Greifensee
Projekt 2014-2016, Ausführung 2018-2019
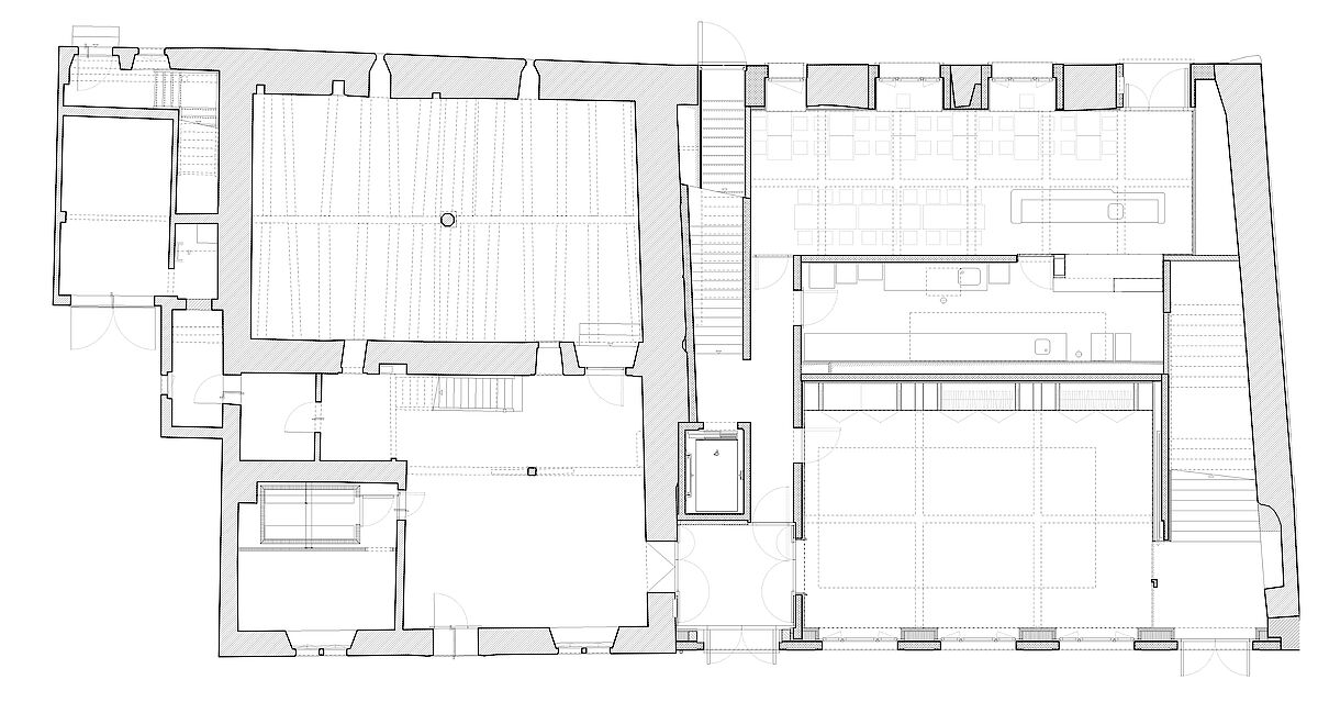
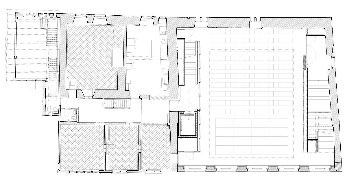
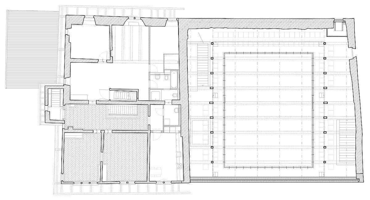
Das Landenberghaus hat sich zu einem etablierten und bewährten Zentrum des gesellschaftlichen, politischen und kulturellen Lebens der Gemeinde Greifensee und der umliegenden Region entwickelt. Sein Saal und die angegliederten Nutzungen sollen grundlegend erneuert werden, um den heutigen und zukünftigen Bedürfnissen gerecht zu werden. Die Umgestaltung soll das vielfältige, aktive Gesellschaftsleben in der Gemeinde erhalten und fördern. Pfarrhaus und Landenberghaus bleiben räumlich als eigene Bauten bestehen. Im Landenberghaus wird eine vertikale Erschliessung mit Treppenanlagen und einem Lastenaufzug angeordnet; die zentrale Treppenanlage im Pfarrhaus bleibt bestehen. Im Erdgeschoss des Landenberghauses ist das Foyer zum Städtli und das Bistro gegen den See angeordnet. Die beiden öffentlichen Räume werden verbunden, können aber auch eigenständig funktionieren.
Planungsteam
Architektur: horisberger wagen architekten in Zusammenarbeit mit stehrenberger architektur, Zürich
Sidler Aline (Projektleitung), Bachmann Michael, Horisberger Detlef, Huber Christian, Laseroms Michelle, Joos Vanessa, Mandallaz Léa, Naef Marius, Troxler Deborah, Wagen Mario
Baumanagement: Schlatter Bauleitungen, Wernetshausen
Landschaftsarchitektur: Andreas Geser Landschaftsarchitekten AG, Zürich
Bauingenieur: dsp Ingenieure & Planer AG, Uster
Akustik: Kahle Acoustics, Brüssel
Klangarchitektur: Andres Bosshard, Zürich
Bauphysik: BAKUS GmbH, Zürich
HLK-Ingenieur: Waldhauser + Hermann AG, St. Gallen
Sanitäringenieur: BLM Haustechnik AG, Zürich
Elektroingenieur: Elprom Partner AG, Dübendorf
Lichtplanung: mosersidler. AG für Lichtplanung, Zürich
Bühnenplaner: Hans-Jörg Huber, Horgen
Gastroplaner: GaPlan GmbH, Würenlingen
Brandschutzplanung: Timbatec Holzbauingenieure Schweiz AG, Zürich
Signaletik: Kaspar Thalmann, Uster
Kunst am Bau: Beat Zoderer, Wettingen
Fotos: Beat Bühler, Zürich
Marcel Rickli, Zürich
Kaspar Thalmann, Uster
Visualisierungen: Studio 12, Luzern

















