Gartenhaus, Uster
Direktauftrag 2021
Bauherrschaft: privat
Ausführung 2023
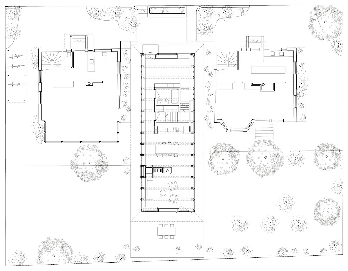
Die Bauherrschaft hatte klare Vorstellungen. Zwei bestehende Einfamilienhäuser in einem Wohnquartier aus den 1920-er Jahren mussten erhalten bleiben, und mit der Ausnützungsreserve sollte eine dritte Wohneinheit erstellt werden. Möglich wurde dies durch das Zusammenlegen beider Grundstücke. Das eingeschossige neue Wohnhaus mit langgezogenem Dachhut aus Zink situiert sich geduckt zwischen die beiden Altbauliegenschaften, und verdichtet die regelmässig angeordnete Einfamilien- und Doppelhausstruktur des Quartiers auf der Hangkante oberhalb des Spitals Uster. Im Gegensatz zu den verputzten Wohnhäusern mit Hochparterre steht das neue in Holzelementbauweise ausgeführte Haus direkt im Terrain und in engem Bezug zum umliegenden Garten.
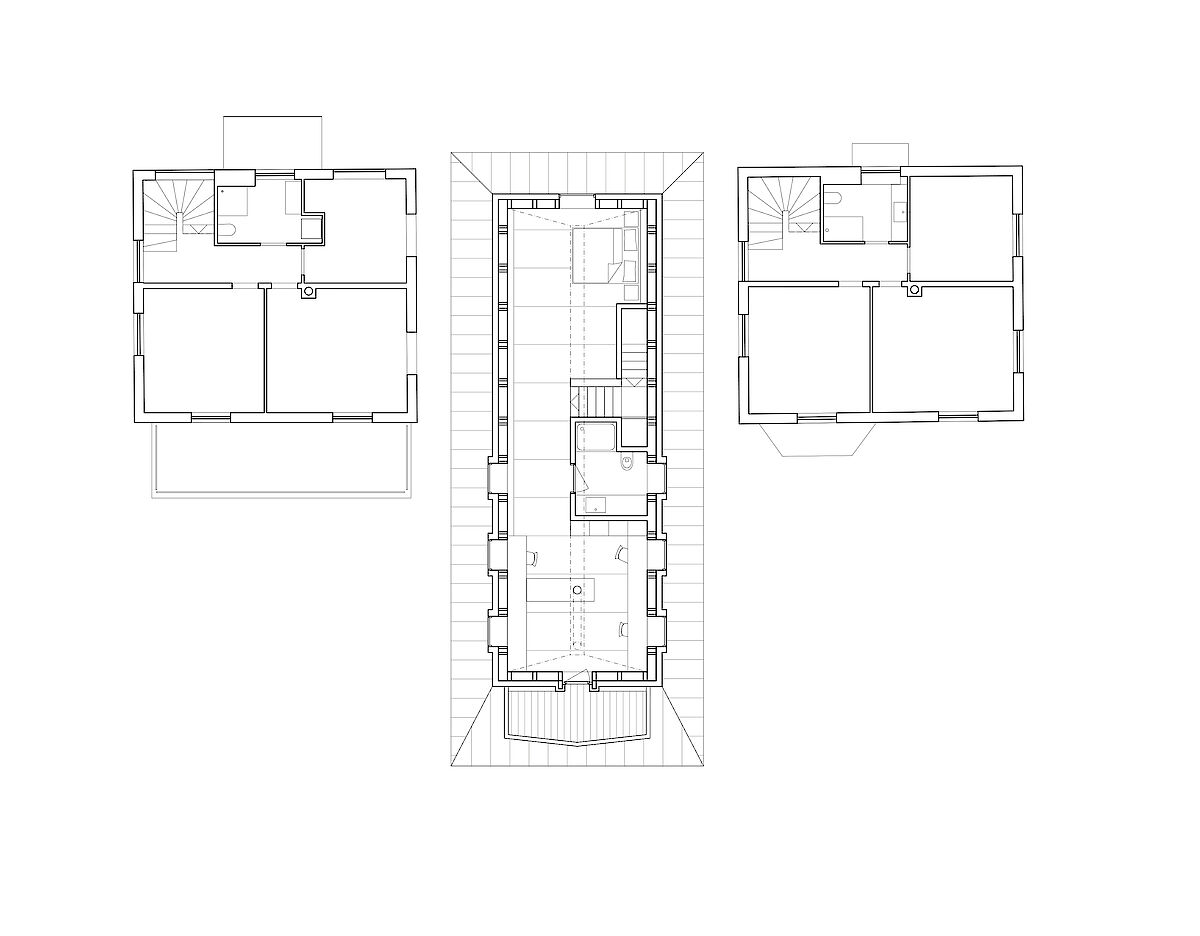
Der allseitig über Lärchenfenster belichtete Wohnraum findet seinen Rückhalt in einem möbelartigen, mit Lehm verputzten Holzspeicherofen. Zur räumlichen Offenheit des Erdgeschosses entfaltet das Dachgeschoss gegensätzliche Eigenschaften. Als Rückzugsraum ist der Schlaf- und Arbeitsbereich vollständig mit Fichtenholz ausgekleidet. Unerwartet gewährt die kleine Dachterrasse einen neuen Blick in das durchgrünte Wohnquartier.
Planungsteam
Architektur: horisberger wagen architekten, Zürich
Cathomas Mia, Horisberger Detlef, Rothmayr Gil,
Baumanagement: bauleiterosterwalder gmbh, Uster
Bauingenieur: dsp Ingenieure + Planer AG, Uster
Fotos: Beat Bühler, Zürich


















