Sanierung und Neunutzung Reithalle St. Moritz
Planerwahlverfahren 2020, 1. Rang
Vorprojekt + Bauprojekt 2021-2022, Ausführung offen
Bauherrschaft: Gemeinde St. Moritz
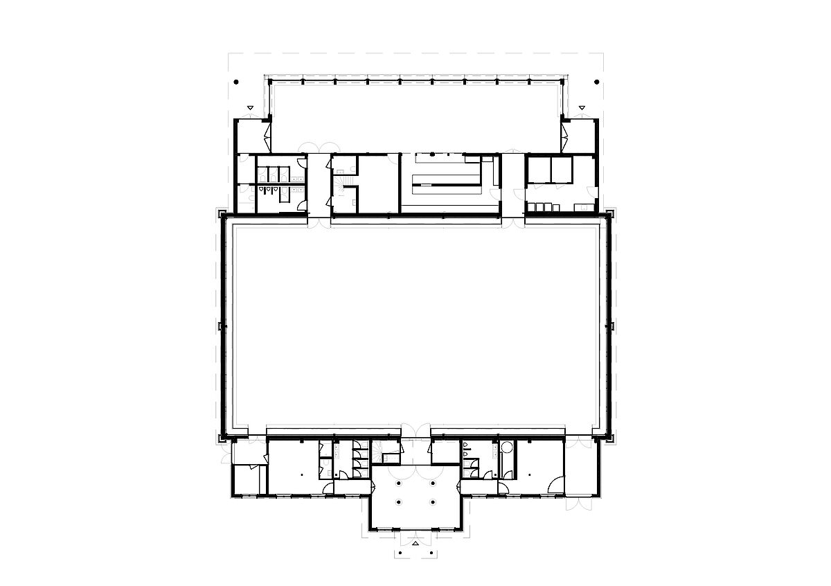
Die denkmalgeschuützte Reithalle weist hohe baukulturelle, ästhetische und akustische Qualitäten auf. Das Bauprojekt bestätigt die Moöglichkeit diese zu bewahren und sie mit statischen, gebaäudetechnischen und bauphysikalischen Verbesserungen in eine tragfähige Zukunft zu führen. Sämtliche Räume wurden nach den Richtlinien der Behindertenverbaände geplant; sie sind niveaufrei oder mit geringen Höhenunterschieden miteinander verbunden und ermöglichen so auch älteren oder gehbehinderten Personen eine problemlose Zugänglichkeit. Das Haus gliedert sich in drei Bereiche: In den Annex Nord mit Haupteingang, Foyer und diversen Serviceräumen, in die eigentliche Reithalle für Veranstaltungen aller Art und in den Annex Süd mit Nebennutzschicht, Werkraum und Bistro.
Planungsteam
Architektur: horisberger wagen architekten in Zusammenarbeit mit stehrenberger architektur, Zürich
Arber Vivienne, Horisberger Detlef, Rothmayr Gil, Zwicky Raffael
Baumanagement: MMT AG, Zürich
Landschaftsarchitektur: ARGE Egü & ORT Landschaftsarchitektur, Zürich
Bauingenieur: dsp Ingenieure & Planer AG, Uster
Akustik: Kahle Acoustics, Brüssel
Klangarchitektur: Andres Bosshard, Zürich
Bauphysik: BAKUS Bauphysik + Akustik AG, Zürich
HLKK-Ingenieur: Anex Ingenieure AG, Zürich
Sanitäringenieur: BLM Haustechnik AG, Zürich
Elektroingenieur: Edico Engineering AG, Kaiseraugst
Lichtplanung: d-lite lichtdesign, Zürich
Bühnenplaner: Theaterplanung GmbH, Baar
Gastroplaner: GaPlan GmbH, Würenlingen
Brandschutzplanung: rsc BauConsult, Celerina
Visualisierungen: Nightnurse Images AG, Zürich









