Eissporthalle Islas, St. Moritz
Projektwettbewerb für Generalplanerteams 2024, 4. Rang
Bauherrschaft: Gemeinde St. Moritz
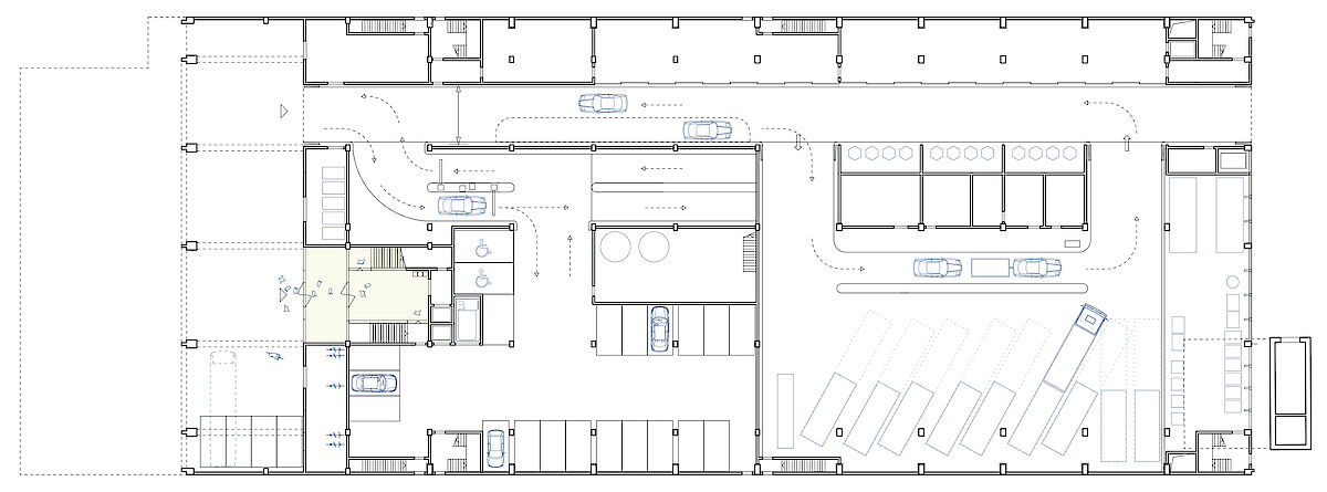
Vom Julierpass herkommend erscheint die neue Eissporthalle wie ein Juwel am südlichen Tor zur Alpenstadt. Die Sporthalle mit aussenliegenden Tragwerk zeichnet sich als Box im Gebäudekörper ab und wird zur gläsernen Krone in den Alpen. Während die Sporthalle den krönenden Abschluss bildet, ermöglicht die innenliegende Durchfahrt die Einbettung der Wertstoffhalle und des Parkens. Die flexible Struktur ist ein zukunftsträchtiges Konzept: Sie ermöglicht es, sowohl während der Planung als auch im Betrieb, Änderungen an der Nutzungsverteilung vorzunehmen. Die Kombination von Sport, Recycling und Parking birgt die Chance die verschiedenen Nutzergruppen an einem Ort zusammenzubringen; ein inklusives Konzept, welches das Gebäude zur attraktiven Drehscheibe macht.
Die Energiezentrale der Eissporthalle wird mit einem nachhaltigen Anlagekonzept zur Energiedrehscheibe, die ohne fossile Energieträger auskommt. Sowohl an der Fassade als auch auf der Dachfläche wird unabhängig der Jahreszeit Solarstrom produziert.
Planungsteam
Architektur: horisberger wagen architekten in Zusammenarbeit mit stehrenberger architektur, Zürich
Biedermann Ronny, Csott Alexander, Horisberger Detlef, Wagen Mario
Bauingenieur: dsp Ingenieure + Planer AG, Uster
Landschaftsarchitektur: Uniola AG, Zürich
Bauphysik: BAKUS Bauphysik + Akustik AG, Zürich
Gebäudetechnik Ingenieure: Anex, Zürich
Visualisierung: Nightnurse Images AG, Zürich
Fotos: Beat Bühler, Zürich
















