Wettbewerb Naturmuseum, St. Gallen
Wettbewerb 2009, 3. Rang
Bauherrschaft: Stadt St. Gallen
Da die Räumlichkeiten des ursprünglichen Naturmuseums in der Innenstadt zu klein wurden, wird als neuer Standort die Peripherie gewählt. Das Grundstück befindet sich in unmittelbarer Nähe zur Autobahn. Die angrenzende Kirche St. Maria-Neudorf bildet mit dem gegenüberliegenden Notkerianum ein Tor zur Stadt.
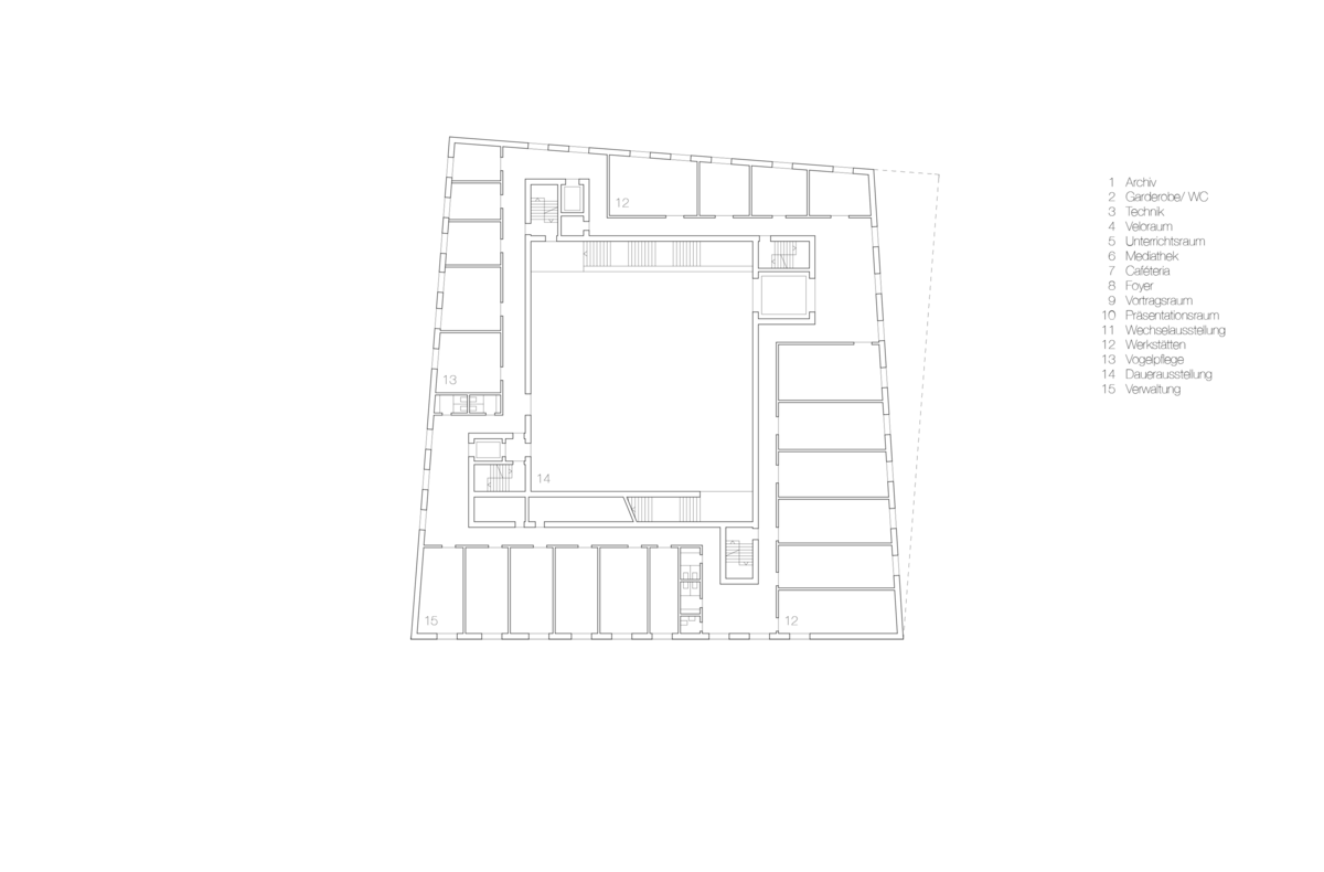
Im heterogenen Stadtgefüge verhält sich der Baukörper mit seiner Setzung und Höhenentwicklung zurückhaltend und stellt die gegebenen Hierarchien nicht in Frage. Ein geschwungener Weg verbindet das Museum mit dem zugehörigen Botanischen Garten im Norden. Ein massiver, erdiger Körper bildet das Kernstück des Hauses. Dieses Gebilde begleitet den Besucher beim Durchschreiten des Hauses; die Erschliessung funktioniert um ihn und durch ihn.
Einläufige Treppen verbinden Foyer und die Ausstellungsräume mit dem Herzstück des Hauses: ein überhoher Raum, welcher in Analogie zum kristallinen Inneren eines ausgehöhlten Steins ausgebildet ist. Gezielte Aus- und Rückblicke begleiten den Weg durchs Haus.
Planungsteam
Architektur: horisberger wagen architekten, Zürich in Zusammarbeit mit Christian Meier Architekt, St. Gallen
Horisberger Detlef, Koch Kirsten, Wagen Mario
Landschaftsarchitektur: Sabine Kaufmann, Landschaftsarchitektin, Uster
Bauingenieur: Bänziger Partner AG Ingenieure+Planer, Richterswil
Energie-Konzept: Christian Meier, St.Gallen
Gebäudetechnik: BLM Haustechnik AG, Zürich
Visualisierungen: Sven Hinrichs, Berlin








