Gemeindehaus und Dorfplatz, Meilen
Wettbewerb 2010, 1. Rang
Bauherrschaft: Gemeinde Meilen
Projekt: 2011 - 2013
Ausführung: 2013-2015
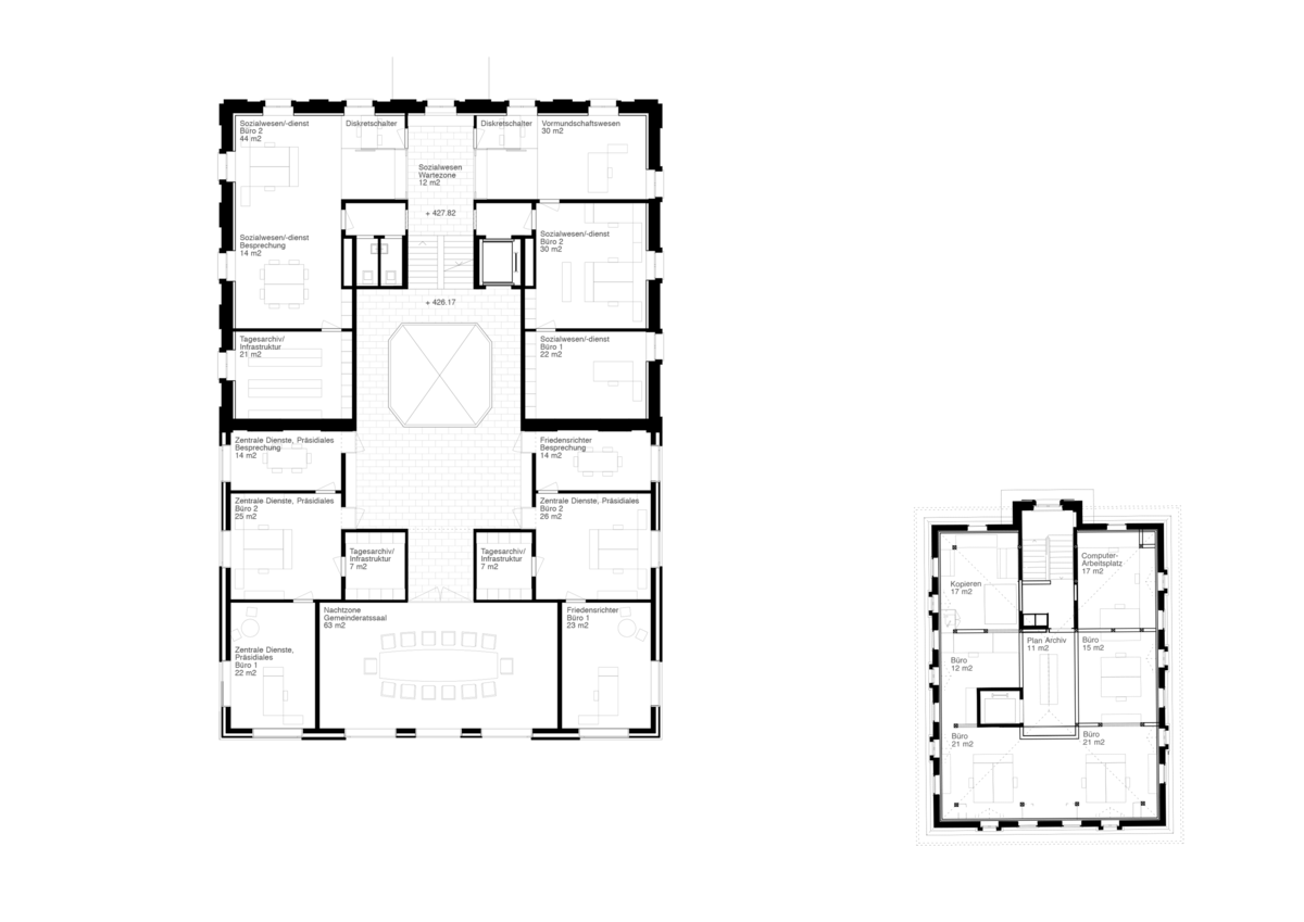
Neben der Erweiterung des Gemeindehauses sollte eine Lösung für den angrenzenden Gemeindeplatz gesucht werden. Der Platz wird von den heute störenden Autos durch eine gross angelegte Tiefgarage befreit und so für den Fussgänger attraktiver gemacht. Ein neues Café schliesst das erhöht gelegene Plateau in Richtung Süden ab. Mit der Erweiterung des 1913 errichteten Gemeindehauses wird eine Symbiose aus Alt und Neu geschaffen. Der Entschluss, an die ursprüngliche Rückfassade im Süden anzubauen, erlaubt zum einen ein Bewahren der historischen Erscheinung zur Strassenseite und schafft zum anderen eine neues Gesicht zum Platz. Das neue, vom Dach aus belichtete Atrium dient als Erschliessungs- und Aufenthaltszone aller Abteilungen. Durch das Bewahren des historischen Treppenhauses generiert sich der Typus eines Splitlevels, welcher auf der Horizontalen zwischen Alt- und Neubau vermittelt.
Planungsteam
Architektur: horisberger wagen architekten in Zusammenarbeit mit Blättler Dafflon Architekten AG, Zürich
Arpagaus Ramon, Bühler Christine, Horisberger Detlef, Huber Olga, Mehnert Eva, Wagen Mario
Baumanagement: b+p baurealisation ag, Zürich
Landschaftsarchitektur: Studio Vulkan Landschaftsarchitektur GmbH
Bauingenieur: Dr. Lüchinger+Meyer Bauingenieure AG
Bauphysik: Michael Wichser + Partner AG
HLKS-Ingenieur: Waldhauser+Hermann AG, Basel
Elektroingenieur: gutknecht elektroplanung ag
Sanitärplanung: IFG Ingenieure für Gebäudetechnik GmbH
Brandschutzplanung: AFC Air Flow Consulting AG, Zürich
Lichtplanung: Bussmann Lichtarchitektur
Fotos: Beat Bühler, Zürich







