Gemeindehaus, Unterengstringen
Wettbewerb 2011, 1. Preis
Bauherrschaft: Gemeinde Unterenstringen
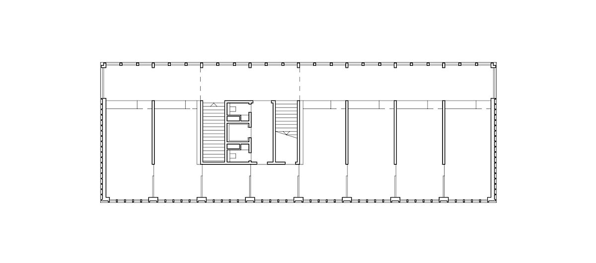
Der Ersatzneubau für das Gemeindehaus entsteht in der Kernzone von Unterengstringen. Der längliche Baukörper ist durch seine Eckpositionierung im Stadtraum präsent. Der neu entstandene öffentliche Platzraum begleitet den Weg zum Alten Schulhaus und wirkt als Begegnungs- und Aufenthaltszone. An das zentrales Treppenhaus schliessen wechselseitig die offen gestalteten Schalterhallen an. Durch dieses Prinzip verzahnt sich der Baukörper mit dem Aussenraum und die Geschossebenen werden zueinander in Beziehung gesetzt. Das grosse Volumen wird gebrochen durch eine feingliedrige Holzfassade. Vertikale Pfosten mit dazwischenliegenden Holz- und Glaselementen rhythmisieren die Fassaden und vermitteln zwischen dem grossmassstäblichen Neubau und der kleinteiligen Umgebung.
Planungsteam
Architektur: horisberger wagen architekten in Zusammenarbeit mit Atelier Buchzelg Architekten, Zürich
Horisberger Detlef, Unger Matthias, Wagen Mario
Landschaftsarchitektur: Sabine Kaufmann Landschaftsarchitektin FH BSLA, Uster
Visualisierungen: Philipp Schaerer, Steffisburg
Fotos: Beat Bühler, Zürich









