Wettbewerb Dorfschüür, Würenlingen
Wettbewerb 2016
Bauherrschaft: Gemeinde Würenlingen
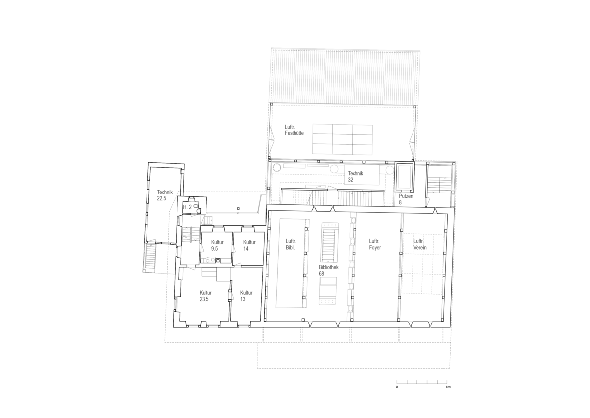
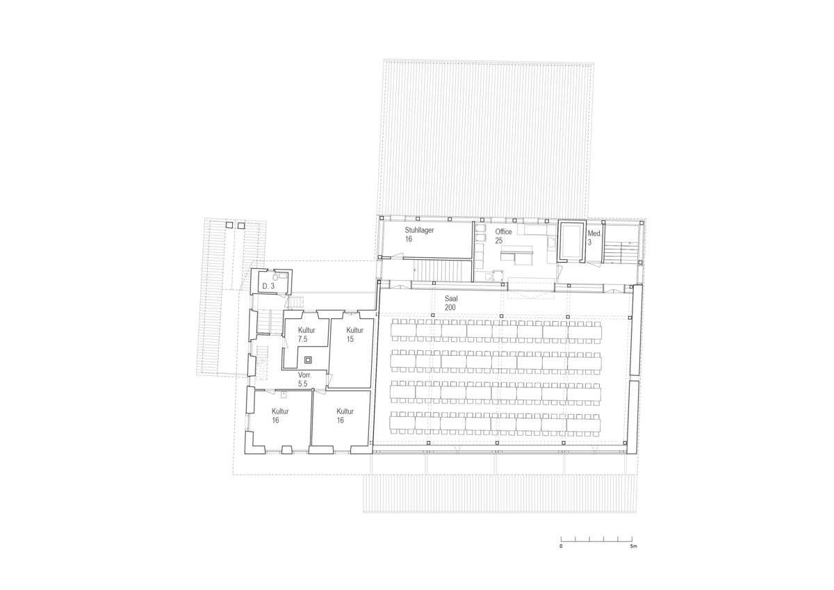
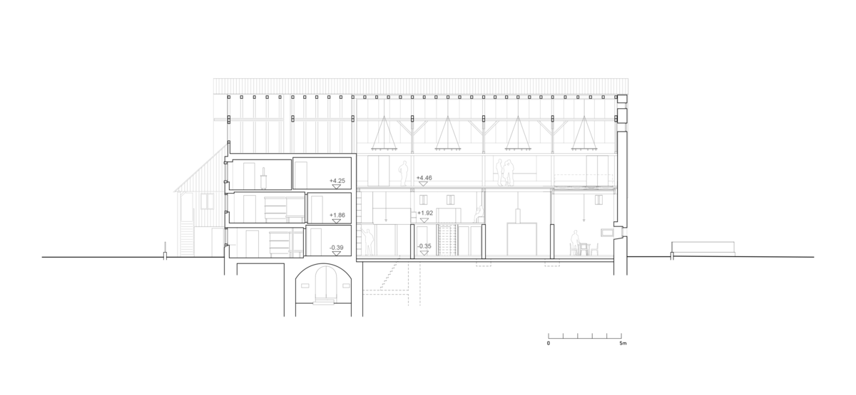
Die Revitalisierung eines denkmalgeschützten Gebäudes ist von kunsthistorischem wie auch architektonischem Interesse. Dabei bilden die bestehenden konstruktiven Elemente nicht nur das Grundgerüst – sie sind auch historische Zeitzeugen. Das vorliegende Projekt stützt sich auf bestehende Qualitäten des Gebäudes und verstärkt diese durch wenige, zurückhaltende Eingriffe, etwa bei der gestalterischen Ausformulierung der Scheunentore oder – im rückwärtigen Bereich – durch eine volumetrische Optimierung des Annexbaus. Ein weiteres Potenzial zur Stärkung des Bestandes liegt in der Gestaltung des Umschwungs. Mit dem Umbau der Dorfschüür zu einem kulturellen Zentrum entstehen verschiedenste charakteristische Räume, die einzeln, aber auch kombiniert genutzt werden können. Im Dachgeschoss befindet sich – als grösster Raum – der Saal mit Sitzgelegenheit für 200 Personen. Die Sichtbalken verleihen ihm eine identitätsstiftende Atmosphäre.
Planungsteam
Architektur: horisberger wagen architekten in Zusammenarbeit mit stehrenberger architektur, Zürich
Horisberger Detlef, Troxler Deborah, Wagen Mario
Baumanagement: Anderegg Partner AG, Zürich
Landschaftsarchitektur: Sabine Kaufmann Landschaftsarchitektin FH BSLA, Uster
Visualisierungen: horisberger wagen architekten, Zürich









