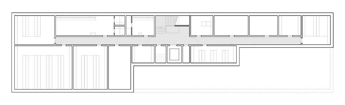
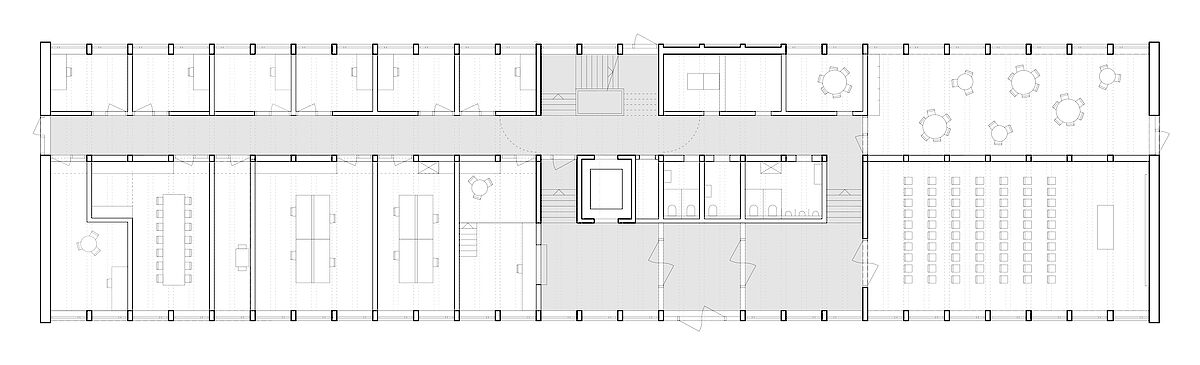
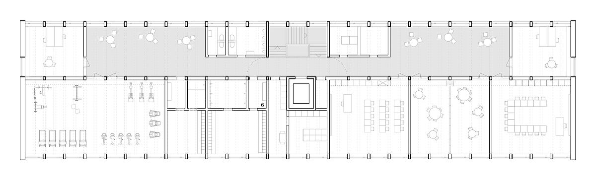
Planungsteam
Architektur: horisberger wagen architekten, Zürich
Horisberger Detlef, Naef Marius, Wagen Mario
Totalunternehmer: Erne AG Holzbau, Laufenburg
Bauingenieur: WaltGalmarini AG, Zürich
Elektroplaner: IBG Engeneering AG, St. Gallen
HLKKS: Vadea AG, St. Gallen
Landschaftsarchitektur: Hager Landschaftsarchitektur AG, Zürich
Bauphysik & Akustik : BAKUS Bauphysik & Akutstik GmbH, Zürich
Visualisierungen: Nightnurse Images AG, Zürich
Fotos: Beat Bühler, Zürich











